8 Foxdale Court
Toronto ON, M2K 2P2
Backing onto protected green space in the heart of Bayview Woods-Steeles, 8 Foxdale Court offers a rare level of privacy on a quiet, low-traffic court just moments from Bayview Avenue.
This is a setting defined by space, mature surroundings, and a sense of calm that is increasingly difficult to find in the city.
This fully reimagined detached residence has been completely renovated from top to bottom, showcasing a refined blend of modern luxury and thoughtful functionality. Offering 4 spacious bedrooms and 6 beautifully designed bathrooms, every detail has been carefully curated to create a cohesive and elevated living experience.
The main level has been redesigned into a seamless open-concept layout, anchored by a sophisticated chef’s kitchen and complemented by an expanded mudroom and an elegantly finished powder room. Bamboo hardwood flooring runs throughout the home, spanning the main level, upper level, and basement, while designer tile enhances key spaces including the foyer, bathrooms, and laundry areas.
Thoughtfully designed for modern living, the home offers flexibility for multi-generational families or those seeking defined living zones. The fully finished lower level, generous room sizes, and abundant storage—including crawl space areas—provide both comfort and practicality for everyday living.
The private backyard retreat is equally impressive, featuring an Azek composite deck with sleek glass railings, ideal for entertaining or enjoying the natural surroundings. Additional highlights include an electric vehicle charger outlet in the garage, adding convenience for today’s lifestyle.
A rare offering that seamlessly blends privacy, scale, and design, this turnkey residence delivers an exceptional standard of living in one of North York’s most established enclaves.
| Price: | $2,988,888 |
|---|---|
| Bedrooms: | 4 |
| Bathrooms: | 6 |
| Kitchens: | 1 |
| Family Room: | Yes |
| Basement: | Finished |
| Fireplace/Stv: | Yes |
| Heat: | Forced Air/Gas |
| A/C: | Central Air |
| Central Vac: | |
| Laundry: | 2nd Floor |
| Apx Age: | 55 Years (1970) |
| Lot Size: | 51.57 x 106.92 Feet |
| Apx Sqft: | 3500-5000 |
| Exterior: | Brick |
| Drive: | Private Double |
| Garage: | Attached/2 |
| Parking Spaces: | 10 |
| Pool: | None |
| Property Features: |
|
| Water: | Municipal |
| Sewer: | Sewers |
| Taxes: | $12,170.96 (2025) |
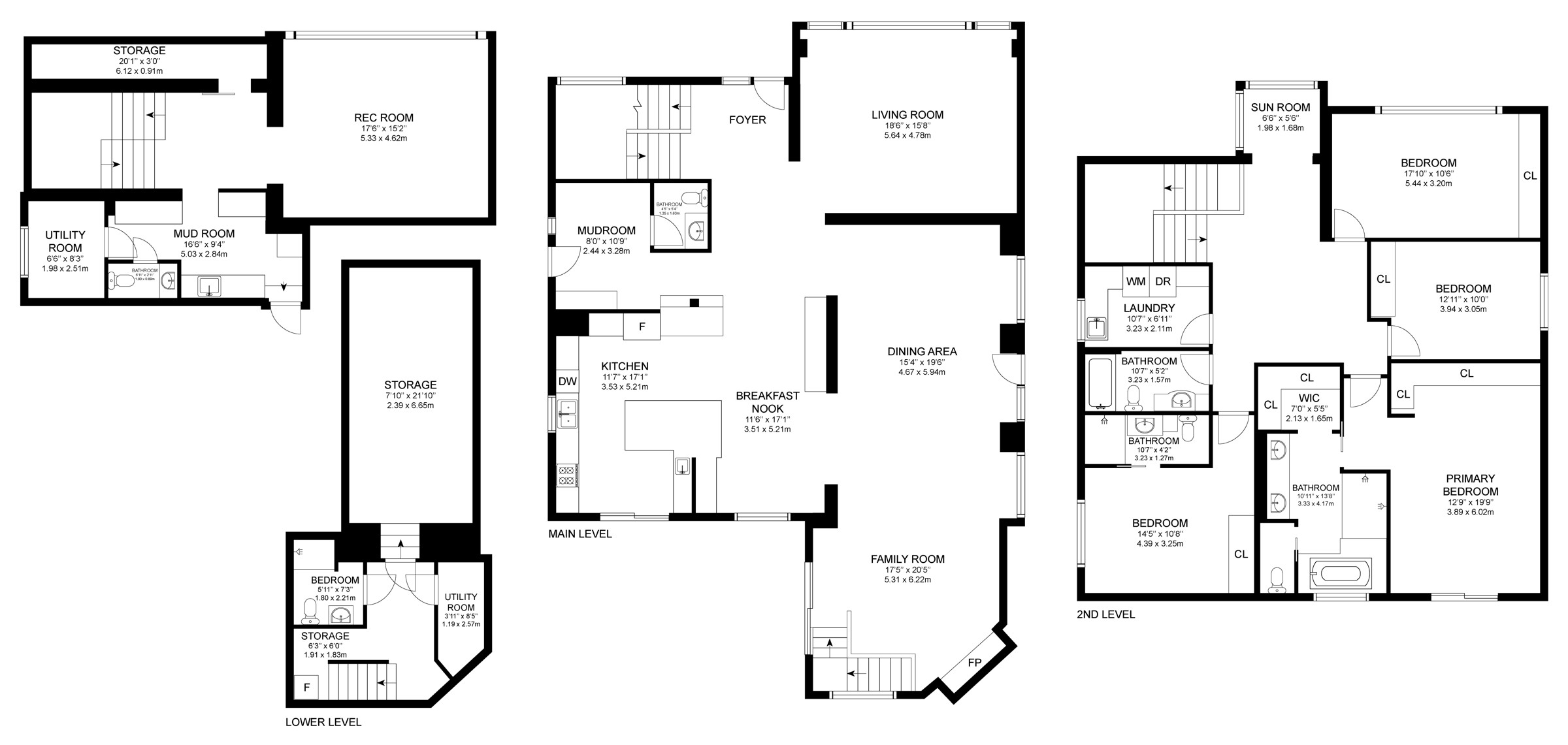
| # | Room | Level | Room Size (m) | Description |
|---|---|---|---|---|
| 1 | Living Room | Main | 5.64 x 4.78 | Large Window, Pot Lights, Open Concept |
| 2 | Dining Room | Main | 5.94 x 4.67 | French Doors, Combined With Family, Open Concept |
| 3 | Family | Main | 6.22 x 5.31 | Stone Fireplace, Walkout To Deck, Cathedral Ceiling |
| 4 | Kitchen | Main | 5.21 x 3.53 | Stainless Steel Appliances, Pot Lights, Walkout To Deck |
| 5 | Breakfast | Main | 5.21 x 3.51 | Picture Window, Open Stairs, Hardwood Floor |
| 6 | Bathroom | Main | 1.35 x 1.63 | 2 Piece Bathroom, Tile Floor |
| 7 | Mudroom | Main | 3.28 x 2.44 | Built-In Shelves, Window, Walkout |
| 8 | Sunroom | 2nd | 1.98 x 1.68 | Large Window, Open Concept, Hardwood Floor |
| 9 | Primary Bedroom | 2nd | 6.02 x 3.89 | Built-In Closet, Pot Lights, Walkout |
| 10 | Bathroom | 2nd | 4.17 x 3.33 | 6 Piece Ensuite, Double Sink, Heated Floor |
| 11 | 2nd Bedroom | 2nd | 5.44 x 3.2 | Built-In Closet, Large Window, Pot Lights |
| 12 | 3rd Bedroom | 2nd | 3.97 x 3.05 | Built-In Closet, Hardwood Floor, Window |
| 13 | 4th Bedroom | 2nd | 3.25 x 4.39 | Hardwood Floor, Window, Pot Lights |
| 14 | Bathroom | 2nd | 3.23 x 1.27 | 3 Piece Ensuite, Tile Floor |
| 15 | Laundry | 2nd | 3.23 x 2.11 | Window, Laundry Sink |
| 16 | Bathroom | 2nd | 3.23 x 1.57 | Built-In Shelves, 4 Piece Bathroom |
| 17 | Mudroom | Basement | 5.03 x 2.84 | Pot Lights, Vinyl Floor |
| 18 | Bathroom | Basement | 1.8 x 0.89 | 2 Piece Bathroom, Tile Floor |
| 19 | Bathroom | In Between | 2.21 x 1.8 | 3 Piece Bathroom, Tile Floor |
LANGUAGES SPOKEN
Floor Plans
Gallery
Check Out Our Other Listings!

How Can We Help You?
Whether you’re looking for your first home, your dream home or would like to sell, we’d love to work with you! Fill out the form below and a member of our team will be in touch within 24 hours to discuss your real estate needs.
Dave Elfassy, Broker
PHONE: 416.899.1199 | EMAIL: [email protected]
Sutt
on Group-Admiral Realty Inc., Brokerage
1206 Centre Street
Thornhill, ON
L4J 3M9
Read Our Reviews!

What does it mean to be 1NVALUABLE? It means we’ve got your back. We understand the trust that you’ve placed in us. That’s why we’ll do everything we can to protect your interests–fiercely and without compromise. We’ll work tirelessly to deliver the best possible outcome for you and your family, because we understand what “home” means to you.
























































