85 Treasure Hill Road
Vaughan, Ontario L6A 0A6
From the moment you arrive, the home presents excellent curb appeal, enhanced by interlock stonework completed in 2023 and updated front steps with railing. Inside, the interior is clean, well cared for, and designed with spacious principal rooms that adapt easily to both daily living and entertaining.
The main level features a bright and practical layout, elevated by pot lights and updated light fixtures completed between 2025 and 2026. The kitchen has been refreshed with new paint in 2025 and includes stainless steel appliances, such as a 3-rack dishwasher and a double fridge. A recently updated powder room vanity adds a modern touch to the space.
Upstairs, four generously sized bedrooms provide flexibility for growing families or those in need of a dedicated home office. Additional conveniences include a front-load washing machine from 2021 and a dryer updated in 2025.
The backyard is designed for easy outdoor living, featuring a cedar deck completed in 2022, ideal for summer dining and relaxing evenings. A waterproofed shed beneath the deck adds valuable storage, while the flat yard offers a safe and versatile space for children, gardening, or future landscaping.
The unfinished basement presents an opportunity to create additional living space tailored to your needs, whether as a recreation room, guest suite, or home gym. Move-in ready and thoughtfully updated, this home offers room to grow in one of Maple’s established residential pockets.
| Price: | $1,069,900 |
|---|---|
| Bedrooms: | 4 |
| Bathrooms: | 3 |
| Kitchens: | 1 |
| Family Room: | No |
| Basement: | Unfinished |
| Fireplace/Stv: | Yes |
| Heat: | Forced Air/Gas |
| A/C: | Central Air |
| Central Vac: | |
| Laundry: | Lower |
| Apx Age: | 20 Years (2006) |
| Lot Size: | 24.61 x 95.47 Feet |
| Apx Sqft: | 1500-2000 |
| Exterior: | Brick |
| Drive: | Private |
| Garage: | Built-In/1 |
| Parking Spaces: | 3 |
| Pool: | None |
| Property Features: |
|
| Water: | Municipal |
| Sewer: | Sewers |
| Taxes: | $4,095.72 (2025) |
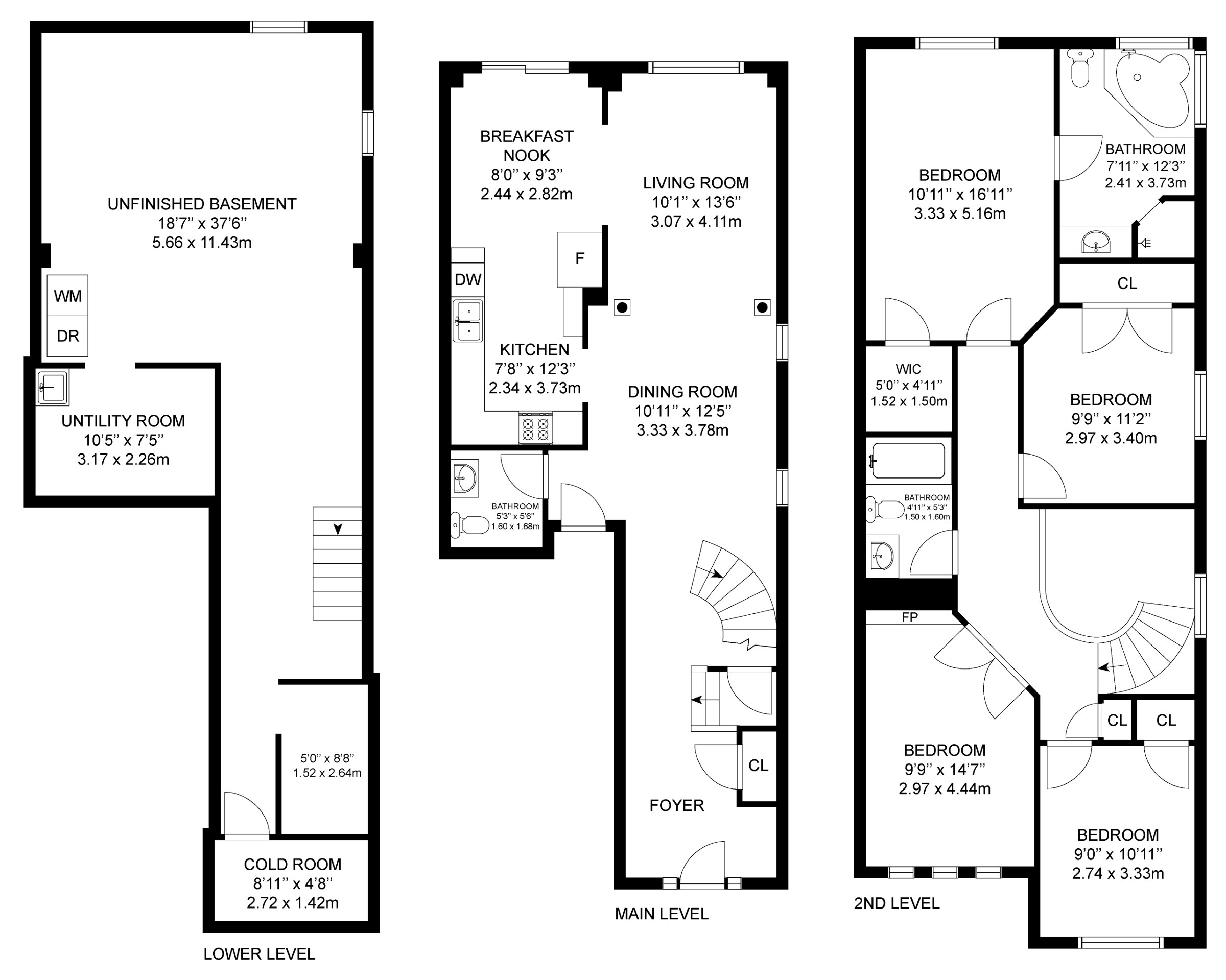
| # | Room | Level | Room Size (m) | Description |
|---|---|---|---|---|
| 1 | Dining Room | Main | 3.33 x 3.78 | Hardwood Floor, Open Concept, Window |
| 2 | Living Room | Main | 3.07 x 4.11 | Hardwood Floor, Coffered Ceiling, Window |
| 3 | Kitchen | Main | 2.44 x 2.82 | Tile Floor, Pantry, Stainless Steel Appliances |
| 4 | Breakfast | Main | 2.34 x 3.73 | Walkout To Deck, Tile Floor |
| 5 | Primary Bedroom | 2nd | 3.33 x 5.16 | Hardwood Floor, Walk-In Closet, 4 Piece Ensuite |
| 6 | 2nd Bedroom | 2nd | 2.97 x 3.4 | Hardwood Floor, Closet, Window |
| 7 | 3rd Bedroom | 2nd | 2.74 x 3.4 | Hardwood Floor, Closet, Window |
| 8 | 4th Bedroom | 2nd | 2.97 x 4.44 | Hardwood Floor, Fireplace, Window |
LANGUAGES SPOKEN
Floor Plans
Gallery
Check Out Our Other Listings!

How Can We Help You?
Whether you’re looking for your first home, your dream home or would like to sell, we’d love to work with you! Fill out the form below and a member of our team will be in touch within 24 hours to discuss your real estate needs.
Dave Elfassy, Broker
PHONE: 416.899.1199 | EMAIL: [email protected]
Sutt
on Group-Admiral Realty Inc., Brokerage
1206 Centre Street
Thornhill, ON
L4J 3M9
Read Our Reviews!

What does it mean to be 1NVALUABLE? It means we’ve got your back. We understand the trust that you’ve placed in us. That’s why we’ll do everything we can to protect your interests–fiercely and without compromise. We’ll work tirelessly to deliver the best possible outcome for you and your family, because we understand what “home” means to you.






































