543 Timothy Street #204
Newmarket, Ontario L3Y 1R1
Showcasing authentic brick-and-beam construction, this exceptional loft condominium is located within the highly regarded Specialty Lofts in the heart of downtown Newmarket.
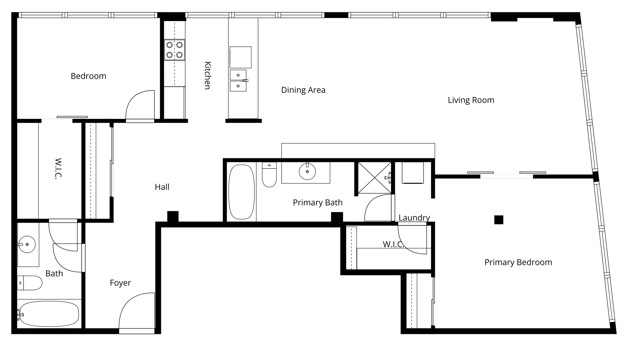
Offering approximately 1,463 square feet of open-concept living space, this rare two-bedroom, two-bathroom residence delivers true loft character through original brick and beam detailing, soaring ceilings, and oversized windows with southeast exposure. The outlook captures peaceful views of mature trees, parkland, and the surrounding community, creating a bright and inviting atmosphere throughout the suite.
The expansive living area features cork flooring and custom built-in shelving, flowing seamlessly into a modern kitchen equipped with stainless steel appliances, a breakfast bar, and an open dining space that is ideal for entertaining. The layout is both functional and visually striking, perfectly suited for everyday living and hosting guests.
The primary bedroom includes a walk-in closet, a four-piece ensuite bathroom, and integrated ensuite laundry. The second bedroom also offers a walk-in closet along with convenient semi-ensuite access. Carpet-free throughout, the suite includes one owned locker and two owned parking spaces, an exceptionally rare and valuable offering for a downtown loft.
Residents enjoy premium building amenities, including an exercise room, party and media rooms, a games room, visitor parking, and a community barbecue area. Maintenance fees include heat, hydro, water, cable television, and parking. Ideally positioned just steps from Fairy Lake Park, scenic trails, and conservation areas, and minutes to St. Andrews Valley Golf Club, Cardinal Golf Club, and Eagle’s Nest Golf Club. Walk to Main Street shops, restaurants, the Newmarket Theatre, and local schools, with YRT and Viva transit nearby and easy access to the Newmarket GO Station for a seamless commute. This is authentic loft living at its finest in one of Newmarket’s most vibrant and walkable locations.
| Price: | $869,900 |
|---|---|
| Bedrooms: | 2 |
| Bathrooms: | 2 |
| Kitchens: | 1 |
| Family Room: | No |
| Basement: | None |
| Fireplace/Stv: | No |
| Heat: | Radiant / Electric |
| A/C: | Central Air |
| Apx Age: | Unknown |
| Apx Sqft: | 1,400-1,599 |
| Balcony: | None |
| Locker: | Owned / #89 |
| Ensuite Laundry: | Yes |
| Exterior: | Brick |
| Parking: | Underground / 2 |
| Parking Spaces: | Owned / #12, #72 |
| Pool: | No |
| Water: | Municipal |
| Sewer: | Sewers |
| Inclusions: |
|
| Building Amenities: |
|
| Property Features: |
|
| Maintenance: | $2,299.16/month |
| Taxes: | $4,262.09 (2025) |
| # | Room | Level | Room Size (m) | Description |
|---|---|---|---|---|
| 1 | Living Room | Main | 6.75 x 4.40 | Cork Floor, Open Concept, Built-In Shelves |
| 2 | Dining Room | Main | 2.39 x 3.94 | Combined With Kitchen, Open Concept, Large Window |
| 3 | Kitchen | Main | 2.74 x 2.94 | Stainless Steel Appliances, Modern Kitchen, Breakfast Bar |
| 4 | Primary Bedroom | Main | 4.67 x 4.21 | Walk-In Closet, Four Piece Ensuite, Combined With Laundry |
| 5 | Bathroom | Main | 4.61 x 1.68 | Four Piece Bathroom, Tile Floor, Built-In Vanity |
| 6 | Second Bedroom | Main | 4.01 x 2.84 | Cork Floor, Walk-In Closet, Semi Ensuite |
| 7 | Bathroom | Main | 1.81 x 2.97 | Four Piece Bathroom, Tile Floor, Built-In Vanity |
FRASER INSTITUTE SCHOOL RANKINGS
LANGUAGES SPOKEN
RELIGIOUS AFFILIATION
Floor Plans
Gallery
Check Out Our Other Listings!

How Can We Help You?
Whether you’re looking for your first home, your dream home or would like to sell, we’d love to work with you! Fill out the form below and a member of our team will be in touch within 24 hours to discuss your real estate needs.
Dave Elfassy, Broker
PHONE: 416.899.1199 | EMAIL: [email protected]
Sutt
on Group-Admiral Realty Inc., Brokerage
1206 Centre Street
Thornhill, ON
L4J 3M9
Read Our Reviews!

What does it mean to be 1NVALUABLE? It means we’ve got your back. We understand the trust that you’ve placed in us. That’s why we’ll do everything we can to protect your interests–fiercely and without compromise. We’ll work tirelessly to deliver the best possible outcome for you and your family, because we understand what “home” means to you.















































