48 Weldrick Road West
Richmond Hill ON, L4C 3T8
This large detached home in Richmond Hill stands out with its rare, flat lot just under one acre, offering exceptional space, privacy, and long-term potential in a well-established North Richvale setting.
Set on an expansive property, the home presents a unique opportunity for buyers looking to personalize a residence to their own taste, as well as builders and investors seeking future development potential. The setting itself is a defining feature, providing a level of outdoor space that is increasingly difficult to find in this area.
Inside, the home features 5 bedrooms, including a convenient main floor bedroom that is ideal for guests, extended family, or a home office. A spacious foyer welcomes you in, highlighted by original wood staircase details that add character and warmth. Generous living and family rooms create comfortable spaces for both everyday living and entertaining, while the functional layout offers large principal rooms filled with natural light.
The fully finished basement adds valuable flexibility, complete with a full kitchen, ample living space, and significant storage, making it well suited for multi-generational living or extended use. The interior reflects its original 1980s design and has been carefully maintained over the years, showcasing clear pride of ownership throughout. With no carpet across the home, it provides a clean and practical foundation for future updates.
Located close to schools, parks, shopping, and major routes, this property combines a quiet residential setting with convenient access to everyday amenities, offering a solid home with exceptional potential in one of Richmond Hill’s most established neighbourhoods.
| Price: | $2,288,000 |
|---|---|
| Bedrooms: | 5 |
| Bathrooms: | 4 |
| Kitchens: | 1+1 |
| Family Room: | Yes |
| Basement: | Finished / Walk-Up |
| Fireplace/Stv: | Yes |
| Heat: | Forced Air/Gas |
| A/C: | Central Air |
| Central Vac: | |
| Laundry: | Lower |
| Apx Age: | 44 Years (1982) |
| Lot Size: | 50 x 415 Feet |
| Apx Sqft: | 3000-3500 |
| Exterior: | Brick |
| Drive: | Private Double |
| Garage: | Attached/2 |
| Parking Spaces: | 6 |
| Pool: | None |
| Property Features: |
|
| Water: | Municipal |
| Sewer: | Sewers |
| Taxes: | $11,335 (2025) |
| Home Inspection | View Report |
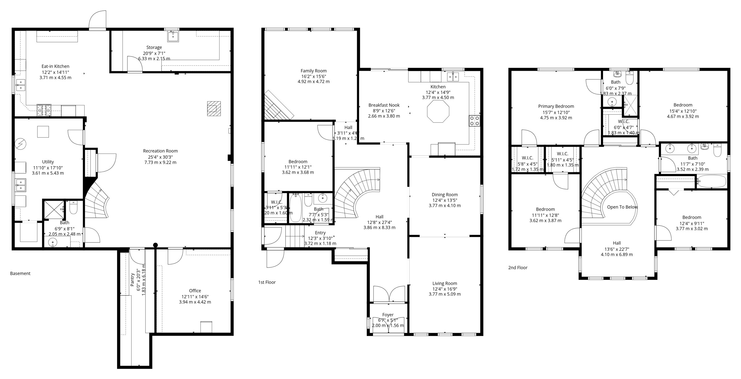
| # | Room | Level | Room Size (m) | Description |
|---|---|---|---|---|
| 1 | Living Room | Main | 3.77 x 5.09 | Hardwood Floor, Combined With Dining Room, Wood Trim |
| 2 | Dining Room | Main | 3.77 x 4.10 | Hardwood Floor, Combined With Living Room, Wood Trim |
| 3 | Kitchen | Main | 3.77 x 4.50 | Eat-In Kitchen, Tile Floor, Built-In Desk |
| 4 | Breakfast | Main | 2.66 x 3.80 | Walkout To Yard, Tile Floor |
| 5 | Family | Main | 4.92 x 4.72 | Fireplace, Parquet Floor |
| 6 | Bedroom | Main | 3.62 x 3.68 | Walk-In Closet, Window, Parquet Floor |
| 7 | Bathroom | Main | 2.32 x 1.59 | 4 Piece Bathroom, Tile Floor |
| 8 | Primary Bedroom | 2nd | 4.75 x 3.92 | Hardwood Floor, Window, Walk-In Closet |
| 9 | Bathroom | 2nd | 0.83 x 2.37 | 4 Piece Ensuite, Bidet, Window |
| 10 | 3rd Bedroom | 2nd | 4.67 x 3.92 | Hardwood Floor, Walk-In Closet, Window |
| 11 | Bathroom | 2nd | 3.52 x 2.39 | Double Sink, 6 Piece Bathroom, Bidet |
| 12 | 4th Bedroom | 2nd | 3.77 x 3.02 | Hardwood Floor, Window, Closet |
| 13 | 5th Bedroom | 2nd | 3.62 x 3.87 | Hardwood Floor, Walk-In Closet, Window |
| 14 | Recreation | Basement | 7.73 x 9.22 | Open Concept, Wood Stove, Tile Floor, Eat-In Kitchen, Window, Walkout |
FRASER INSTITUTE SCHOOL RANKINGS
LANGUAGES SPOKEN
RELIGIOUS AFFILIATION
Floor Plans
Gallery
Check Out Our Other Listings!
How Can We Help You?
Whether you’re looking for your first home, your dream home or would like to sell, we’d love to work with you! Fill out the form below and a member of our team will be in touch within 24 hours to discuss your real estate needs.
Dave Elfassy, Broker
PHONE: 416.899.1199 | EMAIL: [email protected]
Sutton Group-Admiral Realty Inc., Brokerage
1206 Centre Street
Thornhill, ON
L4J 3M9
Read Our Reviews!
What does it mean to be 1NVALUABLE? It means we’ve got your back. We understand the trust that you’ve placed in us. That’s why we’ll do everything we can to protect your interests–fiercely and without compromise. We’ll work tirelessly to deliver the best possible outcome for you and your family, because we understand what “home” means to you.