117 Wildberry Crescent
Vaughan, ON L4H 2C4
Welcome to 117 Wildberry Crescent, where modern luxury meets everyday convenience in Vaughan’s coveted Vellore Woods.
Just minutes from beloved local landmarks such as Canada’s Wonderland and Vaughan Mills Shopping Centre, this beautifully updated home also offers easy access to scenic parks, tranquil ponds, trails, reputable schools, and convenient transit options. The neighbourhood’s family-friendly atmosphere, with nearby playgrounds and walking trails surrounding Wildberry and Sunview ponds, creates an inviting setting for all ages.
Step inside to discover an open-concept main floor illuminated by new engineered hardwood and tile flooring, energy-efficient LED pot lighting, and a fresh, contemporary paint palette. The heart of the home is a custom kitchen, thoughtfully redesigned with quartz countertops, a matching backsplash, a functional breakfast island, and elegant gold fixtures. A custom oak staircase with black metal spindles adds architectural interest and leads to the upper level, where the primary suite features a renovated four-piece ensuite with an added storage unit for optimal organization.
Throughout the residence, comfort and style continue with custom zebra blinds—including motorized blinds in the primary bedroom—upgraded vinyl windows, and premium door handles. The powder room and closets, including a bespoke front closet and a custom bedroom closet, have been expertly redesigned for both style and utility. Aluminum framing on the garage and backyard sliding door ensures durability and efficiency.
This is a move-in-ready, end-unit townhome, meticulously updated from top to bottom to offer both elegance and practicality. With its unbeatable location, exceptional finishes, and cohesive design, 117 Wildberry Crescent represents an outstanding opportunity to enjoy the best of Vellore Village living.
Ready to make your move?
| Price: | $1,099,900 |
|---|---|
| Bedrooms: | 3 |
| Bathrooms: | 3 |
| Kitchens: | 1 |
| Family Room: | No |
| Basement: | Finished |
| Fireplace/Stv: | Yes |
| Heat: | Forced Air/Gas |
| A/C: | Central Air |
| Central Vac: | Yes |
| Laundry: | Lower Level |
| Apx Age: | 25 Years (2000) |
| Lot Size: | 30.05′ x 82.11′ |
| Apx Sqft: | 1100–1500 |
| Exterior: | Brick |
| Drive: | Private |
| Garage: | Built-In/1.0 |
| Parking Spaces: | 3 |
| Pool: | No |
| Property Features: |
|
| Water: | Municipal Water |
| Sewer: | Sewers |
| Taxes: | $3,846.61 (2025) |
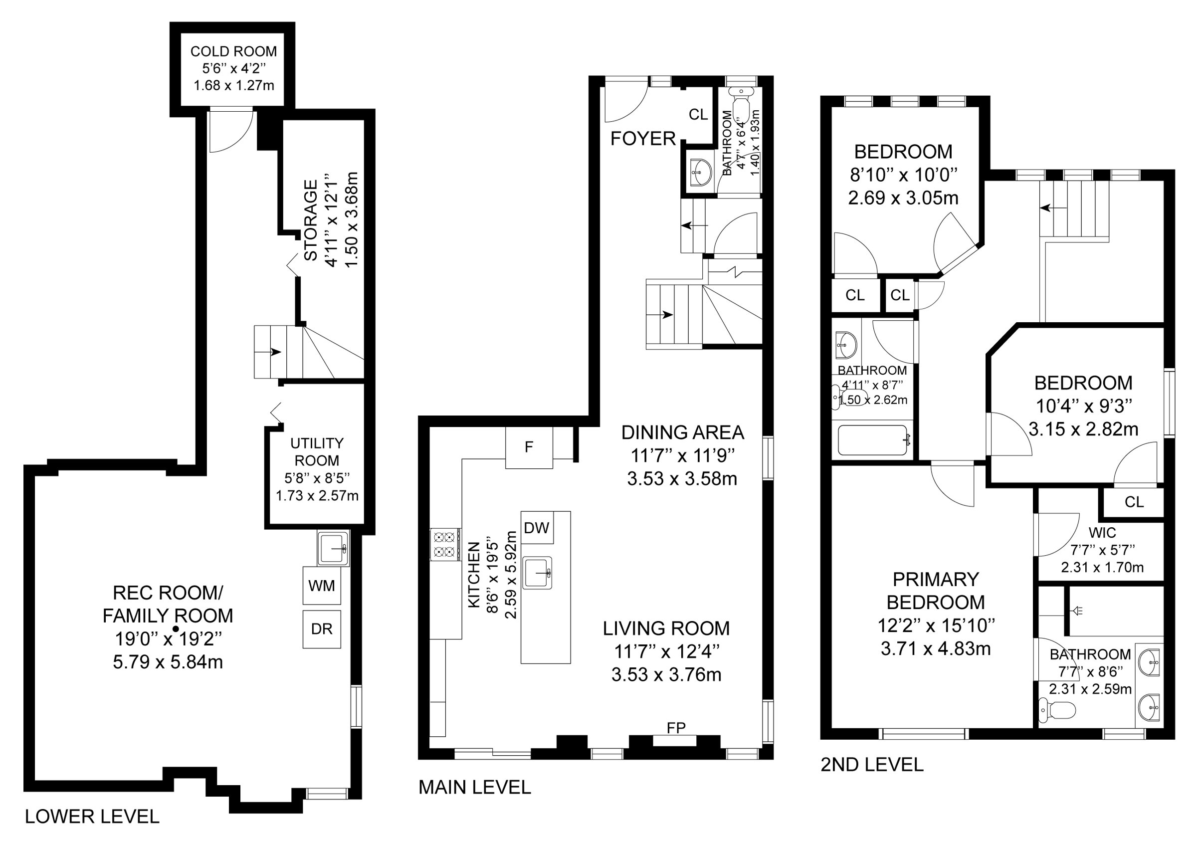
| # | Room | Level | Room Size (m) | Description |
|---|---|---|---|---|
| 1 | Dining Room | Main | 3.53 x 3.58 | Hardwood Floor, Combined With Living Room, Open Concept |
| 2 | Living Room | Main | 3.53 x 3.76 | Combined With Kitchen, Fireplace, Walkout To Yard |
| 3 | Kitchen | Main | 2.59 x 5.92 | Stainless Steel Appliances, Centre Island, Open Concept |
| 4 | Powder Room | Main | 1.4 x 1.93 | Two Piece Bathroom, Built-In Vanity, Tile Floor |
| 5 | Primary Bedroom | Second | 3.71 x 4.83 | Walk-In Closet, Three Piece Ensuite, Laminate |
| 6 | Second Bedroom | Second | 3.15 x 2.82 | Laminate, Pot Lights, Closet |
| 7 | Third Bedroom | Second | 2.69 x 3.05 | Laminate, Closet, Overlooks Frontyard |
| 8 | Bathroom | Second | 1.5 x 2.62 | Four Piece Bathroom, Renovated, Built-In Vanity |
| 9 | Recreation Room | Basement | 5.79 x 5.84 | Open Concept, Combined With Laundry, Pot Lights |
| 10 | Utility | Basement | 1.73 x 2.57 | |
| 11 | Cold Cellar | Basement | 1.68 x 1.27 |
Open House Dates
Saturday, November 22, 2025 – 2pm-4pm
Sunday, November 23, 2025 – 2pm-4pm
LANGUAGES SPOKEN
Gallery
Check Out Our Other Listings!

How Can We Help You?
Whether you’re looking for your first home, your dream home or would like to sell, we’d love to work with you! Fill out the form below and a member of our team will be in touch within 24 hours to discuss your real estate needs.
Dave Elfassy, Broker
PHONE: 416.899.1199 | EMAIL: [email protected]
Sutt
on Group-Admiral Realty Inc., Brokerage
1206 Centre Street
Thornhill, ON
L4J 3M9
Read Our Reviews!

What does it mean to be 1NVALUABLE? It means we’ve got your back. We understand the trust that you’ve placed in us. That’s why we’ll do everything we can to protect your interests–fiercely and without compromise. We’ll work tirelessly to deliver the best possible outcome for you and your family, because we understand what “home” means to you.















































